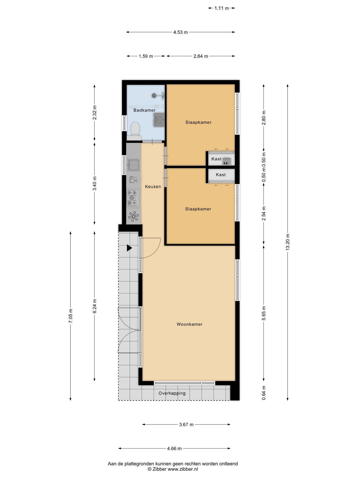
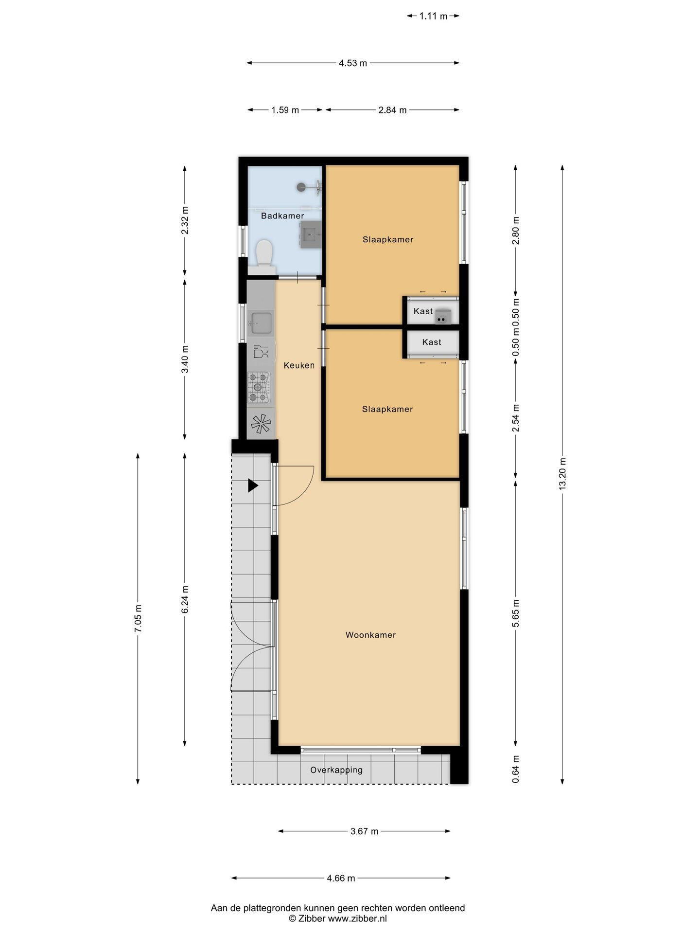
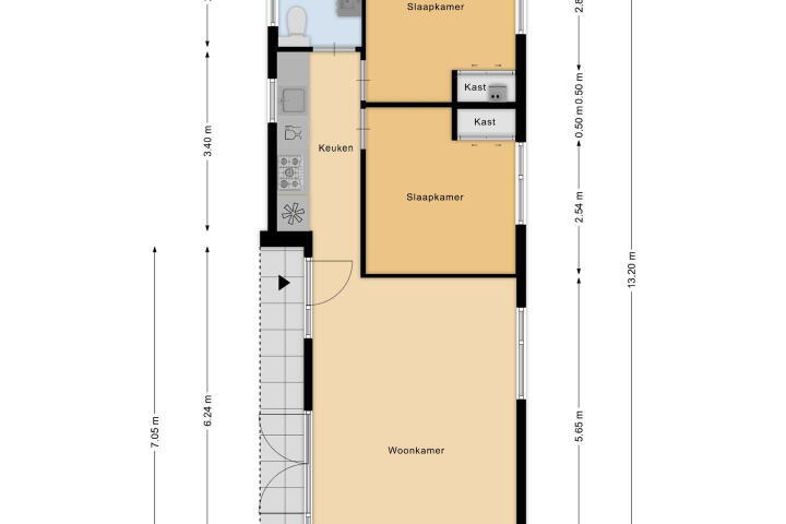
- Woonoppervlakte
- Circa 52 m²
- Perceeloppervlakte
- Circa 213 m²
- Object type
- Vrijstaande recreatie woning
- Aantal kamers
- 3 kamers
Loverensestraat 11-RA4, 5266AM Cromvoirt
Exclusieve recreatiewoning met twee slaapkamers.
Deze prachtige accommodatie biedt een oase van rust en ontspanning, compleet met eigen wellnessvoorziening. Locatie Midden in de bossen van het Noord-Brabantse Cromvoirt, op loopafstand van recreatieplas de IJzeren Man, vindt u Résidence de Leuvert. De omgeving kenmerkt zich door bossen, water, heide en rivierkleigebieden.
Vanaf Résidence de Leuvert ontdekt u de unieke natuurgebieden met de auto, fiets of te voet. Op loopafstand van recreatieplas 'De IJzeren Man'. Aan de rand van Nationaal Park De Loonse en Drunense Duinen en op 20 minuten van Den Bosch en de Efteling.
Indeling Begane grond Via de privéparkeerplaats krijgt u toegang tot het perceel, hier kunt u twee auto's naast elkaar kwijt. De entree geschiedt via de voordeur en geeft toegang tot de ruime woonkamer. De woning heeft een ruimtelijke indeling en grote raampartijen die veel natuurlijk lichtinval verzorgen. Daarnaast wordt het aangeboden inclusief inboedel en is daarmee dus direct klaar voor gebruik, ideaal voor zowel eigen gebruik als verhuur. Met openslaande deuren haalt u het buitenleven naar binnen en combineert u de tuin met het woongedeelte. De woning is voorzien van een lichtkleurige vloer in houtmotief en deze geeft comfort en sfeer in combinatie met de inbouwspots en het strakke afwerkingsniveau. De open keuken is in een neutrale maar moderne kleurstelling uitgevoerd en beschikt over een vaatwasser, oven, koelkast, gaskookplaat en afzuigkap. Een blad in marmerlook en uitzicht over de voortuin geven net even wat extra's mee. Beiden slaapkamers zijn met circa 7 m2 en 8 m2 van een goed formaat en voorzien van een vaste kast. Daarnaast beschikken deze ruimtes over raampartijen welke een balans van privacy en lichtinval geven. Tevens is hier genoeg ruimte voor 2 persoonsbedden en nachtkastjes waardoor de woning geschikt is voor een verblijf met vier personen. De badkamer is nabij de slaapkamers gelegen en voorzien van een toilet, breed wastafelmeubel en een zeer royale douche met glazen schuifdeur, afgewerkt met luxe details. Met brede wandtegels en antracietgrijze vloer heeft de badkamer een tijdloze stijl en is tevens onderhoudsvriendelijk.
Tuin:
De tuin, zorgvuldig aangelegd met oog voor architectuur, beschikt over een afgeschermde wellnesshoek. De welnesshoek is afgeschermd doormiddel van natuurlijke afscheidingen waardoor u hier met privacy gebruik van kan maken. U kunt ontspannen in de jacuzzi of uzelf verfrissen onder de buitendouche op warme dagen. Het aangelegde tegelterras biedt een mogelijkheid om te dineren of te genieten van de rust met een bak koffie. De verschillende terrassen bieden mogelijkheden tot meerdere zitplekken, de inbouwspots in de overstek en de buitenwandverlichting bieden extra details en sfeer in de avond.
Bijzonderheden:
- Beschikt over hottub en buitendouche ten behoeve van betere bezetting bij verhuur;
- Deze woning is helaas niet geschikt voor permanente bewoning, maar bedoeld om te verhuren;
- Verhuur in samenwerking met professionele verhuurorganisatie Topparken;
- Wordt gemeubileerd opgeleverd;
- Oplevering in overleg;
Overdracht
- Vraagprijs
- €215.000 k.k.
- Status
- Binnenkort te koop
- Aanvaarding
- In overleg
- Inrichting
- Gemeubileerd
- Permanente bewoning
- Recreatie woning
Bouw
- Object type
- Vrijstaande recreatie woning
- Soort bouw
- Bestaande bouw
- Soort dak
- Platdak
Oppervlakte en inhoud
- Woonoppervlakte
- 52 m²
- Perceeloppervlakte
- 213 m²
Indeling
- Aantal kamers
- 3 kamers
- Aantal badkamers
- 1 badkamer
- Badkamervoorzieningen
- Wc, wastafel en douche
- Gelegen op
- Vakantiepark
Buitenruimte
- Ligging
- Op vakantie park
- Tuin
- Voor- achter en zij tuinen
Parkeergelegenheid
- Soort parkeergelegenheid
- Op eigen terrein en openbare weg
Indicatie hypotheeklasten
Eigen inleg:
Spaargeld / overwaarde
Rente:
Laagste 10-jaars rente
Laagste 10-jaars rente
2,75% - Centraal Beheer Groen... - NHG
3,05% - Centraal Beheer Groen... - 80%
Laagste 20-jaars rente
3,52% - Syntrus Achmea Groen B... - NHG
3,79% - Syntrus Achmea Groen B... - 80%
Laagste 30-jaars rente
3,64% - Syntrus Achmea Groen B... - NHG
3,88% - Syntrus Achmea Groen B... - 80%
Hypotheek:
Bruto maandlasten: € 0 p/m
Netto maandlasten: € 0 p/m
Hoe berekenen we dit?
Het rentepercentage is gebaseerd op de laagste 10-jaars vaste rente voor één hypotheekdeel. De vermelde rente (2.75% met NHG) is gecontroleerd op 08-10-2025. Deze berekening is gebaseerd op een annuïteitenhypotheek die volledig wordt afgelost, waarbij de maandlasten gedurende de gehele looptijd gelijk blijven. De werkelijke rente en netto maandlasten kunnen variëren, afhankelijk van uw persoonlijke situatie en de hypotheekverstrekker. Raadpleeg een financieel adviseur voor een nauwkeurige berekening en advies. Aan deze berekening kunnen geen rechten worden ontleend; het dient enkel als indicatie.
Documentatie
Kadastrale kaart
Leefomgeving
Plattegronden PDF
Brochure
Bezoek onze website
Bezichtiging
Bod uitbrengen
Waardebepaling
Zoekopdracht
Alles downloaden
Zonnegrenzen bekijken
Op de kaart
Inwoners in Cromvort
Cijfers voor postcodegebied 5266
- Totaal aantal inwoners
- 780 inwoners
- Mannen
- 52%
- Vrouwen
- 48%
Inwoners in Cromvort
Cijfers voor postcodegebied 5266
- tot 15 jaar
- 18%
- 15 tot 25 jaar
- 10%
- 25 tot 35 jaar
- 23%
- 45 tot 65 jaar
- 33%
- 65 en ouder
- 17%
Huishoudens in Cromvort
Cijfers voor postcodegebied 5266
- Eenpersoons zonder kinderen
- 27%
- Meerpersoons zonder kinderen
- 35%
- Huishoudens zonder kinderen
- 62%
Huishoudens in Cromvort
Cijfers voor postcodegebied 5266
- Huishoudens met één kind
- 5%
- Huishoudens met meerdere kinderen
- 33%
- Huishoudens met kinderen
- 38%
Woningen in Cromvort
Cijfers voor postcodegebied 5266
- Woningen voor 1945
- 24%
- Woningen tussen 1945 en 1965
- 16%
- Woningen tussen 1965 en 1975
- 10%
- Woningen tussen 1975 en 1985
- 13%
- Woningen tussen 1985 en 1995
- 11%
Woningen in Cromvort
Cijfers voor postcodegebied 5266
- Woningen tussen 1995 en 2005
- 16%
- Woningen tussen 2005 en 2015
- 6%
- Woningen na 2015
- 5%
- Huurwoningen
- 30%
- Koopwoningen
- 70%
Overige in Cromvort
Cijfers voor postcodegebied 5266
- Gemiddelde WOZ waarde
- € 523.000,-
- Personen onder de 65 met uitkering
- 5%
Overige in Cromvort
Cijfers voor postcodegebied 5266
- Adressen per km²
- 105
- Stedelijkheid (schaal 1 op 5)
- 20%



Indien u vragen heeft of u wilt een bezichtiging inplannen, dan kunt u gebruik maken van het formulier hiernaast. Er zal daarna op korte termijn contact met u worden opgenomen.
Rietvoornvijver 12
2492 MP, Den Haag
070 - 4445 551 info@smashmakelaars.nl www.smashmakelaars.nlTulpentuin 26
2272 XK, Voorburg
Rietvoornvijver 12
2492 MP, Den Haag
Contact opnemen
Over SMASH Makelaars
SMASH Makelaars is een jong en dynamisch makelaarskantoor met uitgebreide ervaring in aankoop en verkoop. Opgericht in 2020, streven wij ernaar om ons te onderscheiden van traditionele makelaarskantoren. Na ervaring opgedaan te hebben bij een ander kantoor in de regio, hebben we besloten onze krachten te bundelen en ons te onderscheiden door onze unieke werkwijze. Onze kernwaarden zijn betrouwbaarheid, betrokkenheid en toewijding. We bieden één vast contactpersoon en zijn altijd bereikbaar, terwijl we deskundig, betrouwbaar en gedegen advies geven dat aansluit bij uw persoonlijke wensen.
SMASH Makelaars: persoonlijke relaties en samenwerking
Het kopen of verkopen van een huis gaat verder dan alleen zakelijke aspecten. Het draait om emoties en het gevoel van 'thuiskomen'. Bij SMASH Makelaars helpen we u graag met meedenken, meekijken, vooruitdenken en vooral samen het beste resultaat bereiken!
Bij SMASH Makelaars bent u geen nummer, maar bouwt u een persoonlijke relatie op. Geen assistenten of junior makelaars: wanneer u kiest voor SMASH Makelaars, is uw huis gegarandeerd in handen van Sander of Alexandra zelf! Elke woning is voor ons een nieuwe uitdaging, of het nu gaat om verkoop, aankoop of waardebepaling. Dit leidt niet alleen tot de leukste woningen, maar ook tot de leukste opdrachtgevers.
Wilt u een woning verkopen in de omgeving van Leidschendam-Voorburg of Den Haag? Neem direct contact met ons op!

Nieuwste reviews
-
Fabian Scheffers
Sander heeft ons door het hele proces van de verkoop van ons huis uitstekend bijgestaan. Hij verdiept zich in je huis, kent de omgeving goed...
-
René Smit
Sander is een eerlijke en betrouwbare makelaar zonder poespas. Hij werkt voor het aankopen ook met een vaste prijs en niet met een percentag...
-
Pirjo de Winkel
Sander is kundig en prettig om mee samen te werken. We hebben met/door hem ons huis gekocht in 2018 en nu weer verkocht....